制造商:Bayham Ltd
产品品类:磁力油位计 (Magnetic Oil Gauges)
产品名称:Baydee 直读式液位计与液位开关 (Liquid Level Switch with Direct Reading Tank Contents Gauge)
产品简介
BAYHAM Baydee 是一款将表盘指示与开关控制(可用于报警、泵差动控制、电磁阀等)相结合的紧凑型设备,内部采用磁力驱动 。每台设备最多可配备四个独立接线的微动开关,这种集成表盘和开关功能的设计,免去了单独安装液位计和开关的需求 。该设备可用于连续测量燃油罐的液体容量,并提供高低液位报警以及输送泵的液位控制 。
核心特点
- 磁性耦合设计:开关驱动和表盘指针机构通过储罐安装法兰与浮臂齿轮进行磁性耦合,这使得在不排空储罐的情况下也能进行维护或开关设置调整 。
- 结构与安装:结构坚固简单 ,易于安装 。
- 多版本支持:可根据要求提供防爆(本质安全)、耐高低温和耐高压的版本 。对于低比重、腐蚀性液体等应用,也有获得船舶检验机构认可的型号 。
应用领域
Baydee 适用于广泛的静态和移动应用,可用于油、水及大多数其他液体 :
- 发电机组燃油和冷却液箱 。
- 船舶上的日用油箱 。
- 变压器储油柜(油枕) 。
- 输送罐、高位油箱、散装储油罐及日常服务油箱 。
技术规格与参数
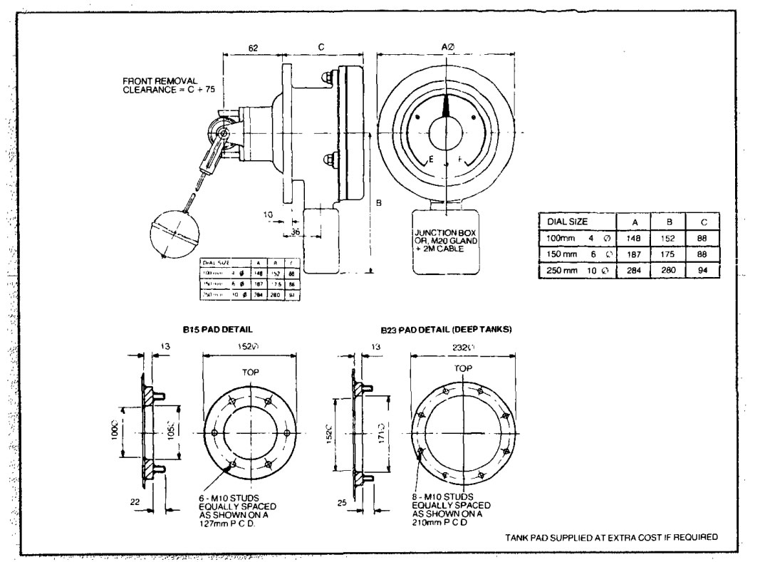
表盘尺寸:可选 100mm (4英寸)、150mm (6英寸) 或 250mm (10英寸) 。
工作温度范围:标准设备工作温度范围为 -10°C 至 +80°C 。(特殊型号最高可达 300°C )。
最大工作压力:标准设备为 5 bar g (75 p.s.i.) 。(最高测试压力达 41 bar (600 p.s.i.) 的型号可供选择 )。
重量:100mm 表盘型号约重 2.5kg 。
防护等级:符合 IP56 标准 。
标准材质:表体、法兰及表盘外壳为聚酯涂层铝材 ;齿轮与浮子臂为黄铜 ;浮子为不锈钢 。
(高温高压型号的所有接液部件均为不锈钢 ;腐蚀性应用型号的接液部件采用未增塑 PVC 和玻璃浮子 )。
开关选项与电气额定值
开关组合:最多可支持 4 个开关 。可选组合包括 A1, A2, A3, A4;A1/D1, A2/D1 或 A3/D1;以及 D1 或 D2 。(注:A代表报警,D代表差动 )。
触点额定容量:交流 (AC) 250VAC, 3A / 直流 (DC) 30VDC, 3A (感性负载), 4A (阻性负载) 。或者 AC 240V 5A (阻性) / 125V 5A (感性) 以及 DC 30V 5A (阻性) 。
支持 110V-10A 的高直流额定感性负载应用 。
接线方式:通过接线盒或 2 米电缆和 M20 密封套连接 。
安装说明
安装位置:可任意角度安装在储罐的顶部、侧面或底部 。顶部安装的设备,法兰上的“Top”孔必须朝向浮臂摆动的方向 。
安装法兰:深度达 9 英尺的储罐可直接通过螺栓连接到 B15 储罐安装法兰上;更深的储罐则使用 B23 安装法兰 。

供应Bayham产品,型号齐全,欢迎采购!
如需获取完整版《安装与维护手册》、具体型号尺寸图纸或特殊工况的定制选型建议,请随时联系我们的销售与技术团队索取详细资料。
免责声明
以上内容基于制造商提供的原版产品手册整理编译,仅供选型参考。产品的实际规格、参数及设计可能因技术升级而有所变更,恕不另行通知。
最终技术指标与设备适用性,请以实际交付的产品及最终订货合同为准。










